Villa a schiera in vendita

Maranello, Via genova - Pozza
€ 428.000
190 Mq 190 Mq
3 bagni 3 bagni

Villa a schiera in vendita

Maranello, Via genova - Pozza

Descrizione annuncio

Pozza di Maranello – Villetta a schiera di testa ristrutturata, pronta da abitare

In zona residenziale tranquilla e ricercata di Pozza di Maranello, a pochi passi dalle scuole elementari e dal parco principale del paese, proponiamo in esclusiva una villetta a schiera di testa situata in strada chiusa e priva di traffico, ideale per chi cerca privacy, sicurezza e comodità ai servizi.

La soluzione si distingue per la massima indipendenza e per l’area cortiliva libera su tre lati, perfetta per chi desidera ampi spazi esterni. Il cortile consente un’ampia possibilità di parcheggio e sul retro offre lo spazio ideale per realizzare una zona relax con gazebo, area barbecue o salottino estivo.

Al piano terra troviamo un elegante ingresso che disimpegna gli ambienti: un comodo garage doppio sul fianco dell’abitazione e un primo bagno di servizio suddiviso tra bagno e lavanderia, entrambi finestrati e funzionali alla gestione quotidiana.

Salendo al primo piano si sviluppa la zona giorno: un ampio soggiorno living con area salotto ben distinta e valorizzata dal camino, cucina separata, bagno ospiti e balcone a servizio della zona giorno.

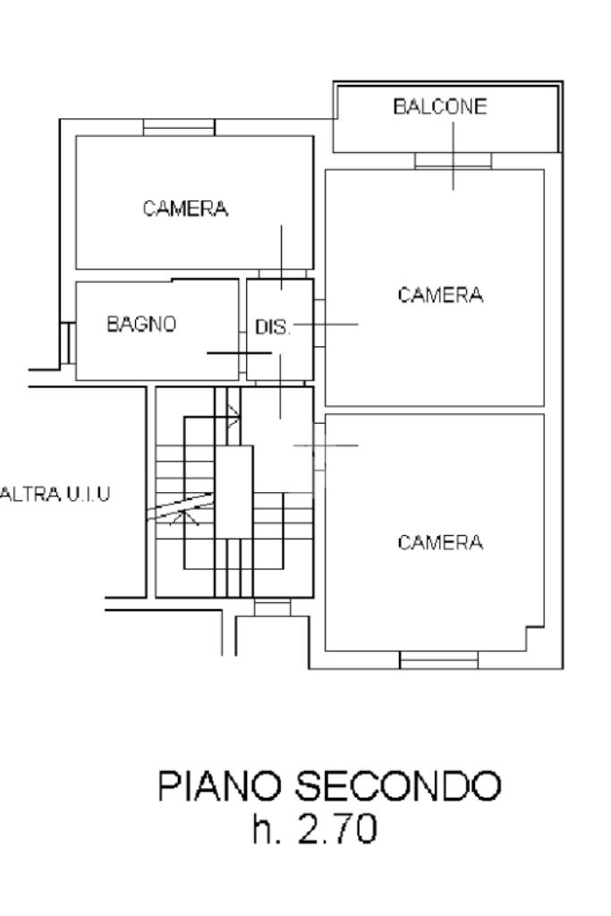
Il secondo piano ospita la zona notte con tre camere da letto e un ulteriore bagno con doccia. All’ultimo livello troviamo un piano mansardato open space, ideale come quarta stanza jolly per ospiti, studio o zona svago, oltre a un pratico ripostiglio.

L’immobile è stato integralmente ristrutturato in stile giovane e moderno: rifatti infissi, impianti, pavimentazioni, rivestimenti e bagni. La casa si presenta pronta all’uso e all’abitazione, senza necessità di interventi.

Soluzione ideale per famiglie che cercano indipendenza, spazi generosi e una posizione riservata ma comoda a tutti i principali servizi. Per maggiori informazioni o per fissare una visita, contattaci.

Mostra tutto

Nelle vicinanze

Trasporto pubblico Trasporto pubblico
Trasporto pubblico
70 m
MAxx
MAxx
1,7 Km
Ricariche auto elettriche Ricariche auto elettriche
Maranello Toscanini | EnelX
450 m
MD Maranello
700 m
Maranello Amendola | EnelX
1,3 Km
Eneldrive Nuovo Terminal Autobus
1,4 Km
Municipio di Maranello | EnelX
1,7 Km
Scuole Scuole
Scuola elementare "Gianni Rodari"
110 m
Scuole
130 m
Scuole Elementari
1,1 Km
Istituto Comprensivo "Ferrari Maranello"
2,1 Km
Farmacia Farmacia
Farmacia
1,3 Km
Farmacia Volponi
2,8 Km
Volponi
2,8 Km
Supermercati Supermercati
ECU
340 m
MD
700 m
Coop
940 m
Conad
2,0 Km
Negozi Negozi
Negozi
770 m
NATURA SI'
3,0 Km
Bar Bar
Sonora Cafe
1,7 Km
Ristoranti Ristoranti
Ristorante Paddock
880 m
Ristoranti
950 m
Bar Trattoria La Fontana
950 m
Ristorante La Gazzella
1,1 Km
Agriturismo del Papa
1,6 Km
Mostra tutto

Caratteristiche

Rif.:
61178018
Piano:
2 di 3
Box:
2
Posti auto:
2
Balconi:
2
Camere da letto:
3
Mostra tutto
Prezzo Prezzo
€ 428.000
Rata mutuo Rata mutuo
€ 2.031 / mese
Spese annue Spese annue
€ 0
Proponi il tuo prezzoProponi il tuo prezzo

Classe Energetica

E
E
E
E
E
E
E
E
E
EP globale non rinnovabile:
305.60 kW h/m² anno
EP globale rinnovabile:
1.71 kW h/m² anno
EP invernale del fabbricato:
EP estiva del fabbricato:
Anno di costruzione:
1980
Riscaldamento:
Autonomo
Tipo impianto:
A radiatori
Tipo alimentazione:
Metano

Ti interessa visionare l'immobile?

Fissa un appuntamento  Fissa un appuntamento

Richiedi informazioni

Clicca su Leggi per aprire l'informativa
* Questi campi sono obbligatori

Calcola il tuo mutuo

Semplice e senza impegno
Anticipo

( % )
Mutuo

( % )

pochi semplici passi

inserisci i tuoi dati
Questionario completato
Grazie per aver richiesto un appuntamento senza impegno con un nostro Consulente del Credito e Assicurativo.

Hai inserito correttamente tutti i dati necessari e a breve riceverai una e-mail con un link da convalidare per inviare i tuoi dati.
Affiliato
Maranello Domus Srl
Via Nazionale, 92 41053 Maranello (MO)

Il nostro staff


  • Mirco Libbra
    Responsabile

  • Nicole Alessandretto
    Collaboratrice

  • Veronica Privitera
    Affiliata

  • Enes Sina
    Collaboratore

  • Mattia Venturi
    Affiliato

  • Francesco Covelluzzi
    Affiliato
Via Nazionale, 92 41053 Maranello (MO)
Zona: Maranello e frazioni - Fiorano Modenese e frazioni
Mostra su mappa
Orari: Dal lunedì al venerdì dalle ore 8.30 alle ore 13 e dalle ore 15 alle ore 20. Sabato dalle ore 9 alle ore 13, pomeriggio su appuntamento.
Affiliato
Maranello Domus Srl
Via Nazionale, 92 41053 Maranello (MO)

2026 Tecnocasa Franchising S.p.A. - P. IVA 08365160152 - Via Monte Bianco 60/A 20089 Rozzano (MI). Ogni agenzia ha un proprio titolare ed è autonoma. Privacy policy | Policy utilizzo | Cookie policy