Grizzaga 115

Maranello (MO)
€ 238.800 - 341.000
3 - 4 Locali 3 - 4 Locali
84 - 122 Mq 84 - 122 Mq

Grizzaga 115

Maranello (MO)

Descrizione annuncio

Il progetto prevede la realizzazione di 11 unità abitative di nuova costruzione, progettate secondo i più elevati standard di qualità, sicurezza ed efficienza energetica. L'edificio sorge in Via Grizzaga in un contesto già servito e ottimamente collegato al centro città e alle principali arterie stradale. Una posizione che unisce tranquillità residenziale e comodità nei collegamenti. Ogni appartamento è dotato di impianto di riscaldamento a pavimento, pompa di calore centralizzata con contabilizzazione dei consumi, condizionamento autonomo, ventilazione meccanizzata, tutto progettato per ridurre i consumi e migliorare il comfort abitativo. Capitolato di qualità con materiali selezionati, ceramiche di grande formato o legno per rendere gli ambianti eleganti e raffinati. Tutti gli accessi condominiali sono privi di barriere architettoniche e gli spazi esterni, i balconi e i terrazzi saranno completati con illuminazione dedicata. La scelta degli alloggi è tra piani terra con area privata e posto auto all' interno della proprietà, piani primi con balconi e al piano secondo solo 3 attici esclusivi con terrazzo. Gli ambienti possono essere cuciti su misura, l'attuale progetto prevede trilocali dai 70mq ai 90 mq, fino ai 105 mq degli alloggi più grandi con cucina separata o tre camere. Da abbinare sono a scelta i garage al piano interrato. Un investimento sicuro, una scelta di qualità, una casa da vivere.
Mostra tutto
Grizzaga 115
Il progetto prevede la realizzazione di 11 unità abitative di nuova costruzione, progettate secondo i più elevati standard di qualità, sicurezza ed efficienza energetica. L'edificio sorge in Via Grizzaga in un contesto già servito e ottimamente collegato al centro città e alle principali arterie stradale. Una posizione che unisce tranquillità residenziale e comodità nei collegamenti. Ogni appartamento è dotato di impianto di riscaldamento a pavimento, pompa di calore centralizzata con contabilizzazione dei consumi, condizionamento autonomo, ventilazione meccanizzata, tutto progettato per ridurre i consumi e migliorare il comfort abitativo. Capitolato di qualità con materiali selezionati, ceramiche di grande formato o legno per rendere gli ambianti eleganti e raffinati. Tutti gli accessi condominiali sono privi di barriere architettoniche e gli spazi esterni, i balconi e i terrazzi saranno completati con illuminazione dedicata. La scelta degli alloggi è tra piani terra con area privata e posto auto all' interno della proprietà, piani primi con balconi e al piano secondo solo 3 attici esclusivi con terrazzo. Gli ambienti possono essere cuciti su misura, l'attuale progetto prevede trilocali dai 70mq ai 90 mq, fino ai 105 mq degli alloggi più grandi con cucina separata o tre camere. Da abbinare sono a scelta i garage al piano interrato. Un investimento sicuro, una scelta di qualità, una casa da vivere.

Tipologie e prezzi

3 locali
€249.000 - €340.400
84 - 122 Mq 89 mq - 122 mq
3 - 4 Locali 3 Locali
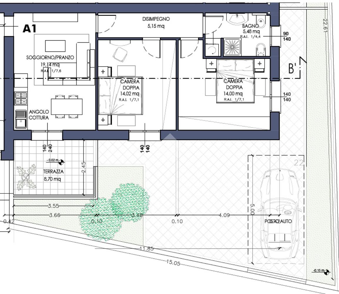
Piano terra con area cortiliva privata, ingresso in soggiorno pranzo con angolo cottura, 2 camere da letto e bagno. compreso posto auto interno privato, esclusa autorimessa da abbinare.
3 locali
€238.800 - €285.500
84 - 122 Mq 84 mq - 101 mq
1 Piano
3 - 4 Locali 3 Locali
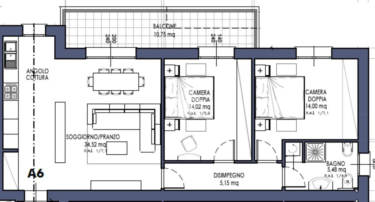
Piano primo. Ingresso in soggiorno pranzo con angolo cottura di 35 mq , 2 camere matrimoniali, bagno, terrazzino di 11mq. Esposizione sud est. Esclusa autorimessa da abbinare.
4 locali
€269.100 - €341.000
84 - 122 Mq 93 mq - 118 mq
2 Piano
3 - 4 Locali 4 Locali
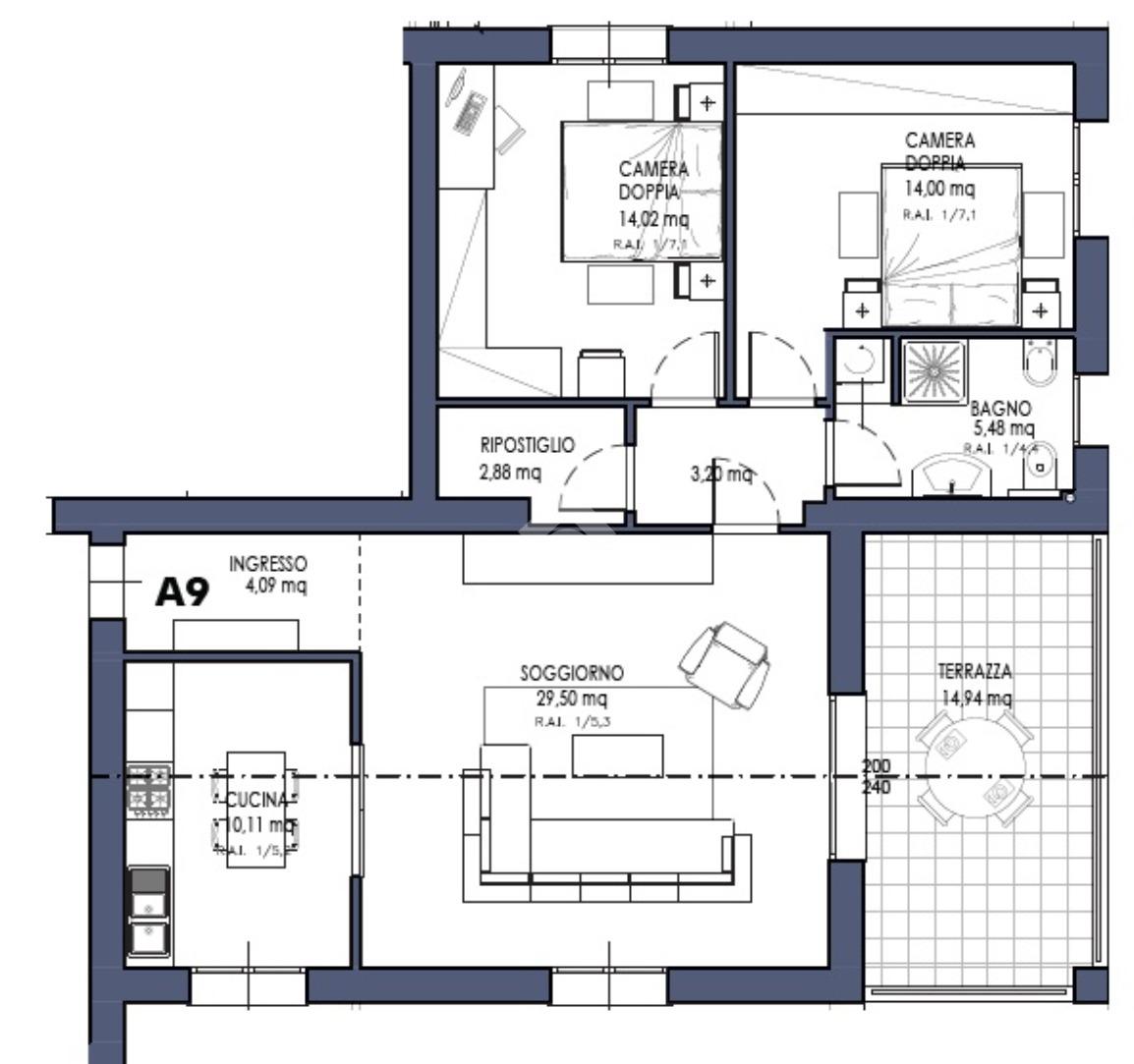
Piano secondo attico. Ingresso, soggiorno di oltre 30 mq, cucina abitabile separata di 10mq. Due camere da letto matrimoniali, bagno e ripostiglio. Terrazza di 15mq. Esposizione est-sud-ovest. Esclusa autorimessa da abbinare.

Classe Energetica

A4
A4
A4
A4
A4
A4
A4
A4
A4

Ti interessa visionare l'immobile?

Fissa un appuntamento  Fissa un appuntamento

Richiedi informazioni

Clicca su Leggi per aprire l'informativa
* Questi campi sono obbligatori
Affiliato
Maranello Domus Srl
Via Nazionale, 92 41053 Maranello (MO)

Il nostro staff


  • Mirco Libbra
    Responsabile

  • Nicole Alessandretto
    Collaboratrice

  • Veronica Privitera
    Affiliata

  • Enes Sina
    Collaboratore

  • Mattia Venturi
    Affiliato

  • Francesco Covelluzzi
    Affiliato
Via Nazionale, 92 41053 Maranello (MO)
Zona: Maranello e frazioni - Fiorano Modenese e frazioni
Mostra su mappa
Orari: Dal lunedì al venerdì dalle ore 8.30 alle ore 13 e dalle ore 15 alle ore 20. Sabato dalle ore 9 alle ore 13, pomeriggio su appuntamento.
Affiliato
Maranello Domus Srl
Via Nazionale, 92 41053 Maranello (MO)

2026 Tecnocasa Franchising S.p.A. - P. IVA 08365160152 - Via Monte Bianco 60/A 20089 Rozzano (MI). Ogni agenzia ha un proprio titolare ed è autonoma. Privacy policy | Policy utilizzo | Cookie policy